Scaling an imported jpeg

I forgot how to do this. I have a lot survey from a community, that is to scale at 1"=30 feet. I want to import it, probably into layout, and change the scale to 1/8" = 1’-0". I do not use layout hardly at all, mostly sketchup pro for the 3d. On layout, I have chosen arch d as my template. I can import it onto this template, how do I get the jpeg drawing to 1/8" = 1’-0". I than want to print this on our plotter, and want to make sure that the scale has changed from 1"=30 ft to my new scale.

Thank you

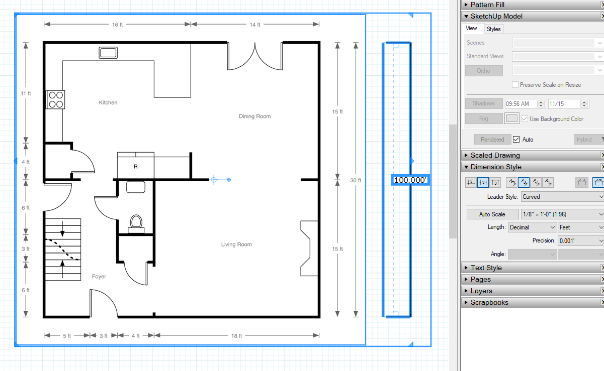
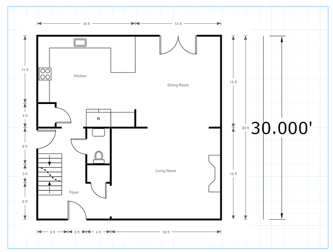
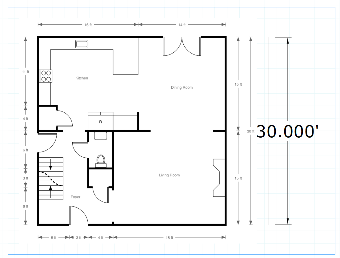
One way you could do that is to the imported JPG file and a scaled dimension together. I drew a line to dimension but it isn’t really needed.

Then resize the group by dragging a corner handle while holding Shift until the dimension shows the correct distance.

This topic was automatically closed 91 days after the last reply. New replies are no longer allowed.