Did you post an example file, that I could try?
This happens to me as well. Does not seem to occur in Raster views, only Hybrid or Vector views, and usually only once per view…
This fix does not seem to work for me, I just tried it.
I later did more tests, and on Mac you can do that fix and export a PDF ok, but on Windows the PDF export shows the artifacts. Also, on both Mac and Windows if you revert the file, or even save, close, open again, the artifacts come back.
There is a bug report about it now.
Experiencing artifact on .pdf export as well.
Rendering viewport as raster is only solution for my file.
It was odd though…while attempting to correct the anomaly I had sketchup file open and when I returned to the LO file I was briefly able to see the anomaly within the LO viewport…adjusted viewport and it disappeared…but on export to .pdf it appears again.
Thought I had cunningly got away with this one, and avoided it, but I too am experiencing the same problem.
Would be good to get an update on a fix timescale. Additional work added to now check every viewport before PDF ing.
Mike
Hi Colin and @trent,
Just wanted to let you know I have had the same experiences, utilized same solutions, as noted above, however, resulting in same results as noted in post below (diagonal artifacts disappear in LayOut, but remain in *.pdf). Also, this is a new issue for me as a result of 19.2 update.
Lastly, in my observations with a diagonal artifact in LayOut, I noticed that there are also missing vector lines adjacent to the diagonal (as noted with red arrows). See Below:
As compares with after changing to Vector mode and back to Hybrid.
Good luck in your resolution.
I’ve posted previously on the other thread that highlights this issue.
This issue persists for me and in the case shown below is a bit more of a headache than previous artefacts that I have been able to easily mask.
I’ve purged the model and it persists in Hybrid, Vector but not Raster.
Changing to one and back again doesn’t work
I don’t want to output the final drawings as Raster.
Any solution soon?
PDF output…
LO…

Hi all, we are actively working on a solution to this issue and understand the pain that this is causing. I looks like the workarounds we have provided earlier does not work in every case. I am seeing that exporting or printing to pdf both show the same result in the files that exhibit this issue.
Another solution that is not ideal and does not work in every case is the explode the SU model viewport then export to pdf. Just remember to UNDO.
Sorry for the inconvenience.
Trent
Thanks for the tip on exploding. I’ll give that a go.
Should have thought of that.
I’ve done some investigating and for the model that I mention above it seems that one particular simple window component that I’ve copied and pasted from other models seems to be the cause of the odd artefact line (I’ll have to check if these other models have been the ones also causing this for me in LO).
It’s strange because these two window components only seem to cause the artefact line when I have the wall layer turned on which has the windows in. If I display only the suspect window (and nothing else) in the LO viewport and export to PDF the line is not there. If I display everything except the suspect windows then the artefact line is not present in the PDF. Of course there could be something else going on…?
SketchUp developers - would you like me to email you the model?
Suspect windows and walls turned on in SU model…
(the side elevation on the right shows the suspect windows)
PDF output…
Windows only turned on…
PDF output…
Suspect windows only turned off…
PDF output…
Update…
I purged the wall group only and this resulted in no artefact line in the exported PDF.
I then undid the purge and exported to PDF again and the artefact line came back.
I then went through the wall group and for each apparent miscellaneous line element that wasn’t relevant geometry for the creating the 3D volume that is the wall, I deleted the individual line element, updated LO and exported to PDF.
Doing this it seems that just one miscellaneous line not required for the 3D geometry was causing the artefact line. Other non required lines in the group did not cause the artefact line.
Good investigating work Paul and those are some interesting results. This is certainly not something that we would expect users to have to do to eliminate these artifacts.
Yes please send me your file and I will add it to the bug.
trent@sketchup.com
Thank you
I am having the same problem and it is very frustrating, however I have found that if a go to the
SU model find the offending group or component and cut it and paste in place the phantom line,
(usually diagonal) disappears on updating the model. This is not a solution but seems to suggest to me that the problem is originating in the SU model. Perhaps something for the SU team to look into?
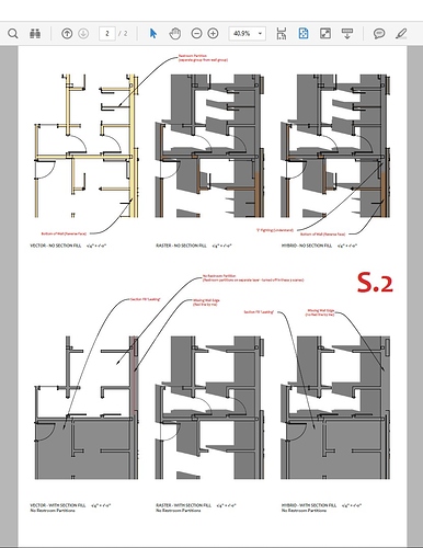
I have done a little more investigation of the Artifact diagonal line issue in *.pdf.
I have found a connection in my model/drawings of the artifact diagonal lines and section fill, and artifact diagonal lines and a separate (restroom partitions) group.
Also, note diagonals in Vector and Hybrid viewports when printed to *.pdf.
Compare S.1 top and bottom conditions.
Diagonal artifacts (and ‘leakage’ of section fill and missing wall lines in Vector and Hybrid views)
Walls group is a tested (Inspector2) ‘Solid’.
[First upload LO, Second upload PDF]
I then tested why diagonals occurred where they do, and turned off Layer = Restroom Partitions.
Compare bottom of S.1 and S.2, no diagonal artifacts. Still leakage and missing wall lines.
[LO Uploads]
[PDF Uploads]
If you would like SU model and LO drawing files let me know.
Best.
Thanks to all for your great investigative work on this issue.
Please feel free to email me your LayOut files that exhibit this behavior. This will be helpful when working on the fix on our end.
Trent
I am attaching a LayOut page that exports to PDF with an extra diagonal even when I explode and ungroup the SketchUp viewport.
testi.pdf (94.4 KB) testi.layout (176.8 KB)
Can you share unexploded LO file? (w/SU model)
I ask because I have had some success with “cutting” suspect geometry in SU…purge unused…save SU Model…Update LO reference…back to SU…paste in place…save…Update LO reference.
It’s too big to post. I posted the exploded version to show that the anomaly can happen even with the viewport exploded to “standard” LayOut shapes.
I understand, and it is a great point…that LO is likely the culprit here “seeing” something in SU file that doesn’t exist.
C













