LayOut - Is it possible to show hidden geometry?

Hi everybody.

I’d like to know if it’s possible to make hidden geometry visible in LayOut.

Thanks in advance.

Yes if you turn them on in SketchUp and update the scene so they show. Then save the file and update the reference in LO.

1 Like

Thank you @DaveR.

It worked, but another question comes to my mind.
Is it possible to show some picture with hidden geometry on and another one without it in same page?

Yes. The hidden geometry display is style related so you need a different style for the scenes in which you want to see the hidden lines and another for the ones in which you don’t want them displayed.

1 Like

Interesting, thank you so much as always :wink:

You can even make what appears to be a single view with part of it showing hidden lines and the other part not showing them.

In SketchUp make two identical scenes, but in one, change the style so hidden lines show.

In Layout, import the model, set scale and arrange the viewport where you want it. Then copy that viewport and paste it directly on top of the original. Using the scale handles on the viewport, resize it so that only the portion of the view with the desired hidden lines is visible. In this second viewport, change the style to reveal hidden lines.

I do this with sections where I wish to “jog” the cutting plane, an option not available in SketchUp (at least not so far as I’ve discovered).

Cheers,
Thom

1 Like

That looks pretty interesting, thank you so much @tpdes :wink:

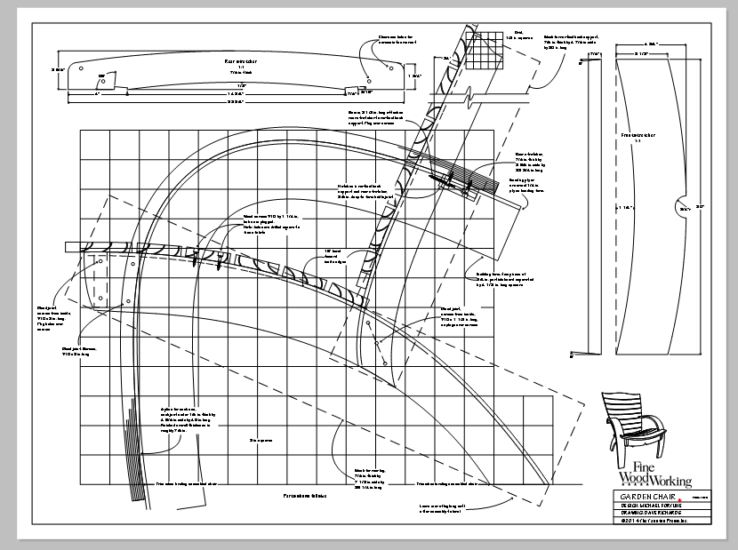
There are a lot of ways to use stacked viewports (what @tpdes describes) in LO. My suggestion is to put each viewport in the stack on a different layer. It makes it easier to get at each one when you need to do it.

There are nine viewports stacked in the main view for this chair plan. Each is on its own layer.

1 Like

So far this is too much hard for me :wink: hehe.

Keep practicing and you’ll be able to draw things like this chair, too.

2 Likes

Drawing that chair is easier than building it. :slight_smile:

I haven’t built one out of wood yet but a lot of people have built them from the plans I created.

This topic was automatically closed 91 days after the last reply. New replies are no longer allowed.