Layout dimensions stretched after Sketchup changes - help!

Hello
Hope someone can help me as I seem to be going round in circles. I am fairly new to sketch up - so apologies if this is a simple fix or I am missing something obvious.

I’m working in 2d.

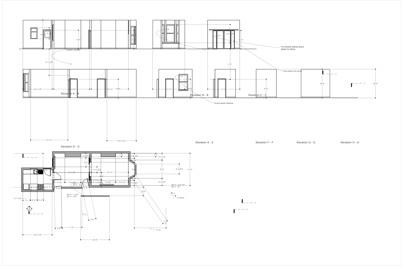
Having drawn up my plan in sketchup and then sending to Layout, in order to add dimensions. I then want to amend the drawing; so go back to sketchup, make any amendments - then switch back to Layout and then render model on page in order to see the new changes made in sketchup

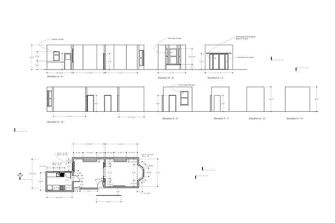
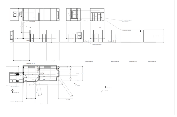
This then stretches all the dimension lines and the model moves.

I’ve attached an image to show the results (won’t let me add two images so can’t show the before image)

Can anyone advise why this is happening & how to fix it ?
Thanks Andrea

Reading this on my phone it’s hard to see where the stretching is. I have done 2d work like this just in layout. If you can upload the model can have a look though someone will have the answer.

I’ve uploaded the original so you should be able to see the difference, it’s the dimension lines that are stretching.

Do the scenes show as modified in LayOut’s SketchUp inspector window?

When I go to Inspector the file is highlighted in blue, so I click on that & press ‘update’ but it still all seems to move when I render the model!

That doesn’t answer the question. Does the SketchUp inspector show the scene as modified when you’ve got the viewport selected?

I think you are referring to the Document Set Up window anyway.

Yes I was referring to the document set up window - where is the sketchup inspector?

Also I’ve not created any scenes, i’ve just drawn the plan in sketchup & sent it all to layout.

The SketchUp inspector window is found in the tray. Normally that’s over on the right side of the main LayOut screen.

This one sentence confirms why you have the dimensions stretched as you do. You need to be using scenes in SketchUp to establish the views for the viewports in LayOut.

Since you aren’t creating scenes, the camera ends up in a different place after you make the edits. This, in effect, moves the model within the boundaries of the viewport. The dimension text remains where you put it but the anchors for the extension lines remain attached to the model.

If you make scenes for each view, the camera positions are locked so you can make changes to the model itself without having it appear to move.

Check your private messages–click on the M in the orange circle up in the right corner of the screen.

2 Likes