Hello,
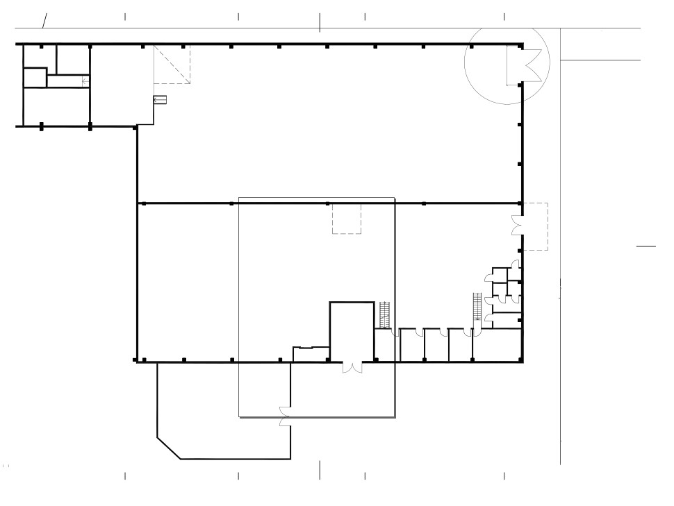
I am having an issue exporting some blueprints into .dwg from Illustrator into SketchUp. Something I have done a million times but today I am having no luck. Can somebody brainy take a peek and see what I may be doing wrong. The error message I get in SketchUp is:
Some imported geometry is extremely far from the
model origin. If you experience any instability with
your SketchUp model, please delete that geometry
from your .dwg/.dxf file and import again.
…then…
Import Failed.
I have attached the Illustrator fileVolvo_Blueprint.ai (230.2 KB)
I am using SketchUp Pro 2018 and Illustrator 2020.

